Langford Moor, Newark - Period Cottage Renovation

A complete redesign of a period cottage to create a more contemporary, executive property

 

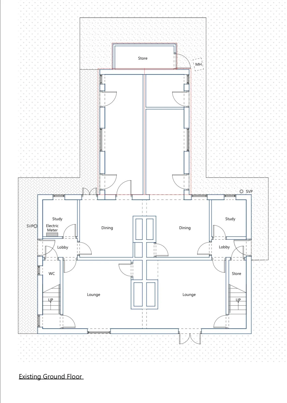
Dating back to 1906, this Edwardian property in Newark, Nottinghamshire was originally designed by Lord Middleton as accommodation for the farmworkers as part of the estate of Langford Hall. Once two separate cottages, the dwellings were merged together to create the ultimate country living space.

Renovation time

In 2020, we were brought on board by the owner of this magnificent property to redesign the internal space to create a more contemporary, executive space. And we couldn’t be prouder of the finished design.

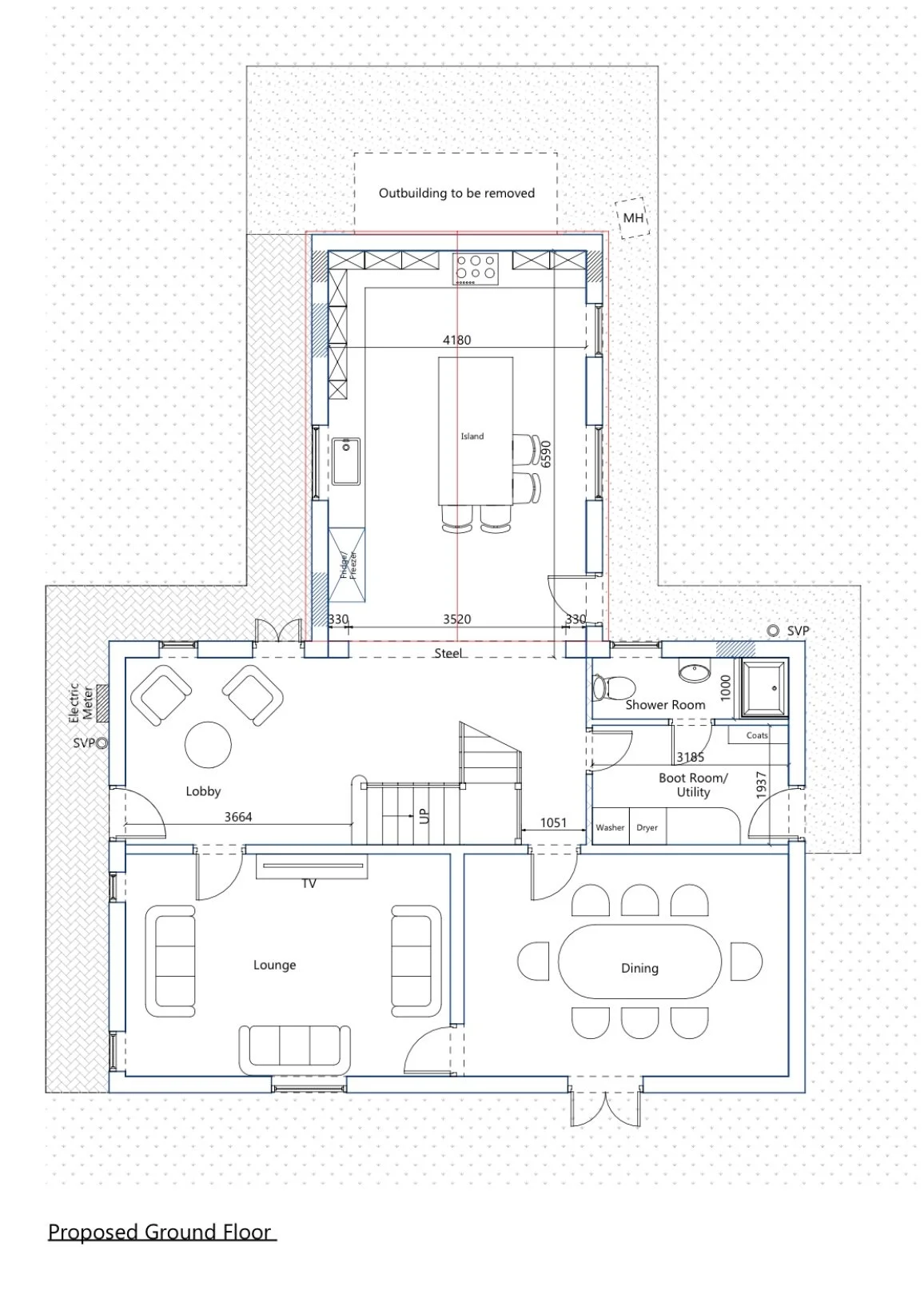
With a new grand entrance hall giving an immediate ‘wow’ factor, we added in a centralised oak and glass staircase and minstrels’ gallery above where the owner has included a contemporary crystal chandelier, cascading down to add to the welcoming and stylish ambience.

For the kitchen, we vaulted the existing roof and added six rooflights to saturate the space with natural light.

This is a perfect example of a great designer-client relationship - working together and inspiring each other to come up with the best ideas that work for the client and the space. And for us as the designers! We’d buy this property in a heartbeat if we could!

And now for the floor plans!

 
Previous
Previous

Barn Conversion Balcony

Next
Next

Double & single storey rear extensions with internal alterations